Prime Estates utilizează fişiere de tip cookie pentru a personaliza și îmbunătăți experiența ta pe Website-ul nostru. Înainte de a continua navigarea pe Website-ul nostru te rugăm să aloci timpul necesar pentru a citi și înțelege conținutul Politicii de Cookie. Prin continuarea navigării pe Website-ul nostru confirmi acceptarea utilizării fişierelor de tip cookie conform Politicii de Cookie.

Vânzare spațiu comercial, 3 intrari cu vitrina dubla - Calea Dorobanți

Bucuresti, Dorobanti

ID: DC2894 286
425.000€
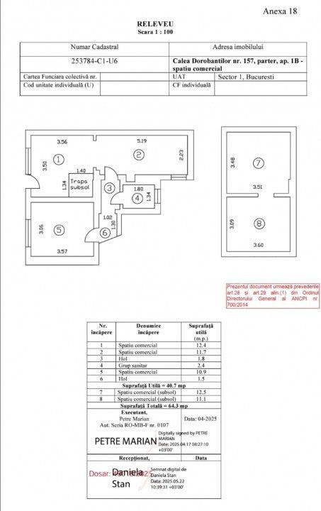
4 Camere 1 Baie 64.53 m2 Parter
Doina Ionescu
Doina Ionescu
Chief Executive Officer (CEO)
doina.ionescu@prime-estates.ro +40741606074

Doina Ionescu

+40741606074

Va prezinteam spre vânzare un spațiu comercial cu o suprafață utilă de 64,53 mp utili, distribuit pe parterul si subsolul unei clădiri P+1, situata pe Calea Dorobanți, una dintre cele mai prestigioase zone comerciale din București.

Spațiul beneficiază de un amplasament stradal cu vitrină dubla, oferind vizibilitate excelentă și trafic pietonal intens.

Spatiul esre ompartimentat în 3 camere la parter, 1 hol și un grup sanitar, plus 2 camere la subsol si are 3 intrari, avand si o curte interioara si oferind posibilitatea de a fi recompartimentat in 2 spatii.

Subsolul este amenajat, suprafata de 23,56 mp este perfectă pentru depozitare sau birouri.

Locație Excepțională și Flexibilitate în Amenajare:

Strada Dorobanți reprezintă una dintre cele mai frecventate artere comerciale din capitală, cunoscută pentru fluxul constant de vizitatori și pentru clientela de înaltă calitate. În apropiere se află transportul public, cafenele, restaurante, piața Dorobanților, Muzeul Național al Hărților, școli și magazine, ceea ce face zona extrem de dinamică și bine conectată.

Zona Dorobanți este recunoscută ca una dintre cele mai exclusiviste zone rezidențiale, dar și ca un loc foarte căutat pentru afaceri de top din București, fiind faimoasă pentru vilele sale din perioada interbelică, restaurantele de lux, ambasadele și buticurile premium. Aflată într-o locație centrală, oferă acces rapid la Piața Victoriei, Aviatorilor și Herăstrău, fiind preferată de expați, diplomați și profesioniști

Spațiul este ideal pentru diverse tipuri de afaceri – retail, servicii sau specialități – și permite amenajări personalizate, adaptabile nevoilor specifice ale afacerii tale.

Oportunitate de Investiție, această proprietate reprezintă o oportunitate excelentă de investiție, cu un randament anual solid de aproximativ 8% si poate fi eficientizat.

Va asteptam la vizionare!

  • Nr. camere:4
  • S. utila:64.53 mp
  • S. vitrina:9.00 m
  • Front stradal:10.00 m
  • Comp.:Compartimentat
  • Nr. bai:1
  • An constructie:1950
  • An renovare:2015
  • Structura rezistenta:Caramida
  • Tip imobil:Bloc
  • Utilitati generale: Curent, Apa, Gaz, Curent trifazic, Telefon, Acces internet, Utilitati in zona
  • Sistem incalzire: Centrala proprie, Calorifere
  • Climatizare: Aer conditionat
  • Pereti: Vopsea lavabila, Faianta
  • Podele: Parchet, Gresie, Marmura
  • Stare: Renovat
  • Ferestre: PVC
  • Iluminat: Lampi, Lumina naturala, Iluminat interior sistem LED

Proprietati similare